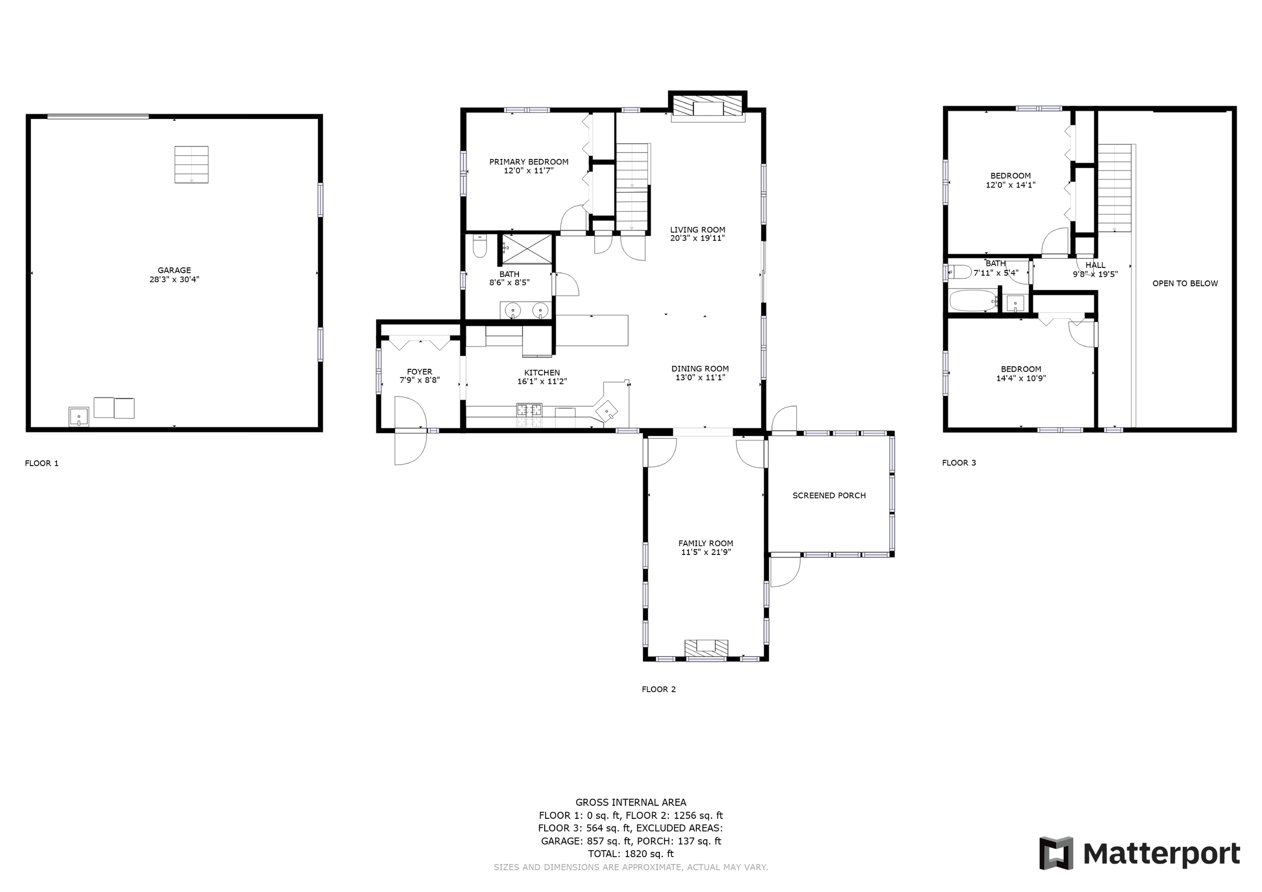
Peaceful privacy from your gorgeous golf course front home in Tanglwood Lakes at Lake Wallenpaupack. With a large open floor plan with several living/entertaining areas, an open rear deck and attached screened porch, a main-level master bedroom and bath, 2 upper bedrooms and bathroom, and a full unfinished basement for future expansion, you have ample space for groups of all sizes! Home features granite counter tops, tons of natural light, hardwood and tile floors, and multiple propane fireplaces. The lower level basement also includes a 1 bay garage accessible from your paved driveway. Call today for a private tour!
View 136 Eastwood Dr in 360 Degrees
WHY WE LOVE IT
3 Bedrooms, 2 Baths
Tanglwood Lakes Community
Lake Wallenpaupack Lake Rights
VIDEO TOUR
GALLERY
SCHEDULE A SHOWING